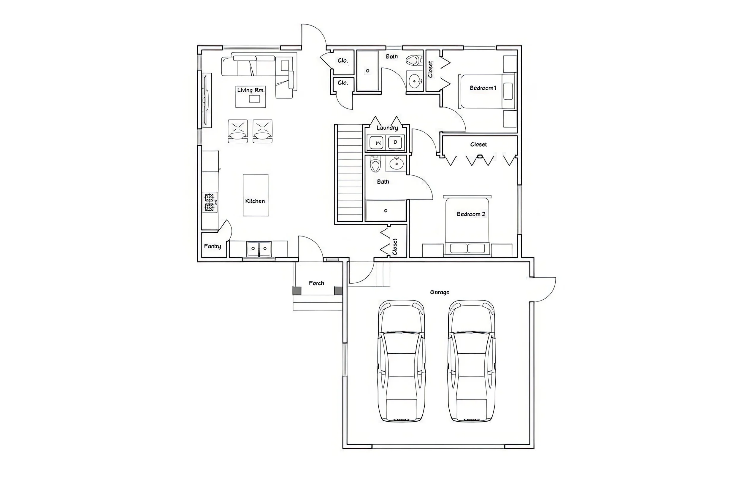
Brand New Bungalow Home in Lorette MB: Perfect house plan for downsizing or the growing family! Gorgeous west facing backyard lot in the new development of Oak Terrace. At this stage, you can select your finishes & materials (call for more info & our standard specs). The floor plan offers a fantastic open concept layout, consisting of a large eat-in kitchen w/quartz counters, spacious living room at the back of the house, large windows that let in a ton of natural light (south facing backyard), & garden door to the backyard! Down the hall you’ll find the main floor laundry, full 4-pc bath & 2 bedrooms including the spacious master bedroom w/large double-closet & 3-pc ensuite bath! The price includes a 22x22 double attached garage, concrete driveway, piled foundation, central A/C, new home warranty & more! The full height basement will have roughed-in plumbing, ready for your finishing touches! Call today for more info. Always happy to help!

33 Harvest Crescent

Lorette

$456,500

2 Bedrooms 2 Bathrooms 1,013 sqft

Next
Next

145 Harvest Crescent